$4,900
/MO
3 Bedroom Apartment for Rent, Bucktown
2048 W Charleston St, Chicago, IL, 60647
3 Beds
2 Baths
Penthouse
At a Glance
-
Parking Available
-
Air Conditioning
-
In-unit Laundry
Application Fee:
$50
Date Available:
Available Now
Lease Term:
Short Term
Security Deposit:
$5,000
Neighborhood Info:
Bucktown
Unique Features
Located on a peaceful treelined street in energetic, fashionable Bucktown with upscale amenities at your fingertips. This unique penthouse/loft apartment has its share of quirks that come with being a 125-year-old building yet its unique vintage comfort, eclectic furnishings and modern necessities come together to make your time in the city relaxing and unforgettable. This is a legally licensed Chicago vacation rental R22000079930
Interior Highlights
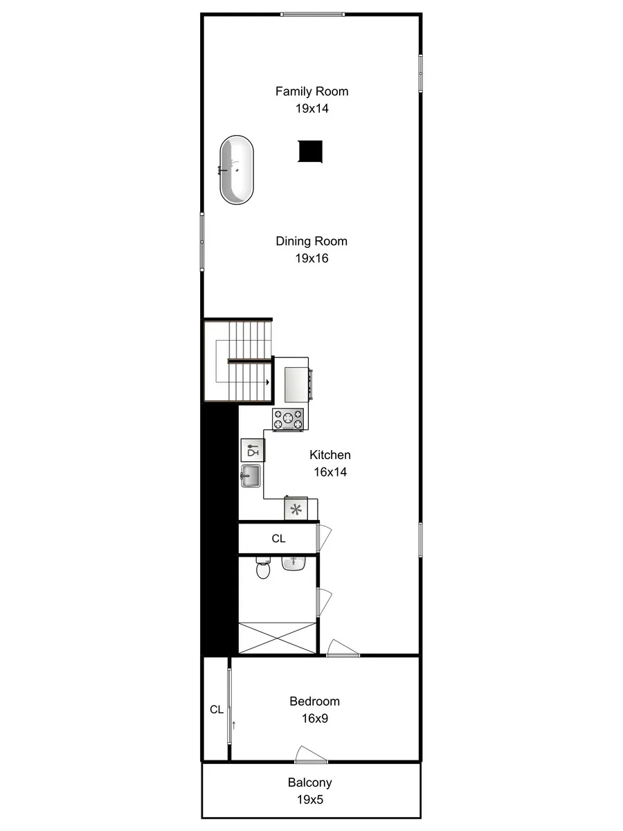
This dramatic and spacious unit incorporates 2 floors and has a retro /vintage /European feel with many primitive antiques and a romantic claw foot tub in the living room. Upon entering the top floor the church lights and 12 foot vaulted ceilings hover over the open space unveiling the living, dining, and kitchen areas. There are the original wood floors throughout, completely equipped kitchen with dishwasher and a 10 foot vintage dining table that was once a foIding farmers table. Roku TV, washer/dryer, 2 balconies for smoking, wireless internet, bidet, towels, linens, comforters and blankets
Best Things About the Building
Guests will have access to the entire space except for a small linen closet with a hot water heater. Including one free parking spot on the parking pad in the back of the building. Pets considered with an extra fee. 24/7 self check-in with door code access. There are no parties allowed in this unit and all guests or pets must be included in the inquiry. no children under 7 years old this is an all adult building.
Best Things About the Neighborhood
There are many trendy restaurants/bars/salons/cafes as well as great shopping for new, vintage and thrift all in Bucktown. Its just blocks from the 606 and also Divvy bikes (city bikes) at the end of the block available to rent out.
Why It's Worthy of Calling Home
over 200 excellent reviews on airbnb:
Rating, 5 stars
November 2025
Laurie’s property was absolutely wonderful—spacious, comfortable, and full of unique character. It truly felt like a home away from home and was exactly what my boyfriend and I needed for a relaxing weekend getaway. The neighborhood was welcoming, with plenty of great shops, restaurants, and things to do just a short walk away. We couldn’t have asked for a better stay and would highly recommend it to anyone visiting Chicago!
Rating, 5 stars
November 2025
Laurie’s property was absolutely wonderful—spacious, comfortable, and full of unique character. It truly felt like a home away from home and was exactly what my boyfriend and I needed for a relaxing weekend getaway. The neighborhood was welcoming, with plenty of great shops, restaurants, and things to do just a short walk away. We couldn’t have asked for a better stay and would highly recommend it to anyone visiting Chicago!
Policies
Parking
Yes.
Apartment Features & Amenities
Air Conditioning: Window unit
Balcony, Deck, or Patio
Dishwasher
Furnished
Hardwood Floors
Microwave
Refrigerator
Separate Dining Room
Stove
Walk-in Closet
Washer/Dryer: In-Unit
Window Coverings
Building Features & Amenities
On-site Management
Secured Entry














