$2,490
/MO
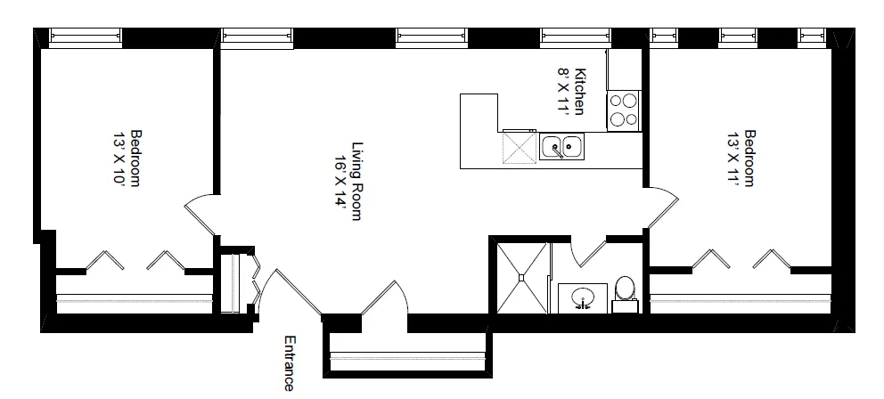
2 Bedroom Apartment for Rent, Lakeview
620 W Belmont Ave #402, Chicago, IL, 60657
2 Beds
1 Bath
At a Glance
-
Pet Friendly
-
Utilities Included
Date Available:
Available Now
Lease Term:
12 months
,
Neighborhood Info:
Lakeview
Unique Features
Beautifully updated top-floor apartment in the heart of Lakeview! This spacious home features a brand-new kitchen and bath with granite countertops, stainless steel appliances, and a sleek glass-enclosed shower. Enjoy hardwood floors, ceiling fans, and an open-concept layout perfect for modern living. Heat and water are included—no security deposit! The well-maintained building offers video intercom entry, elevator access, bike storage, and cashless laundry via mobile app. Residents enjoy easy online rent payment and maintenance management. Walk to Mariano’s, Belmont CTA, Lake Michigan, and Lakeview Athletic Club. A perfect blend of comfort, convenience, and location!
Policies
Pet Policy
Cats OK
Utilities Included
Heat
Apartment Features & Amenities
Dishwasher
Hardwood Floors
Washer/Dryer: On-Site
Building Features & Amenities
Bike Storage
Elevator
Secured Entry











